Проектирование
ВОЛС, СКС, СВН, СКУД, ОПС
Новый сайт www.PTOKEY.ru
Главная
Вход
Меню сайта
Главная
Новости
Примеры работ
Download
Каталог статей
Контакты
Категории раздела
Слаботочные системы
[15]
Конструкции
[4]
Инженерные сети
[7]
Инфо
Погода в Москве
Gismeteo
Прогноз
Курсы валют
Покупка
Продажа
USD/RUB
0.00
0.00
EUR/RUB
0.00
0.00
Данные на
Главная
»
Фотоальбом
»
Слаботочные системы
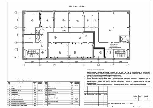
» План СКС
План СКС
В реальном размере
1599x1130
/ 258.0Kb
430
0
5.0
1
2
3
4
5
Добавлено 18.11.2014
GoldenJeck
Всего комментариев:
0
Войдите:
Отправить